4 / 1
المعلومات
المدينة
طولكرمالحي / المنطقة
الحي الشماليعدد الغرف
٥ غرف نومعدد الحمامات
3 حماماتمفروشة؟
غير مفروشةمساحة البناء
160 متر مربعالطابق
الطابق الرابععمر البناء
1 - 5 سنواتالواجهة
شمالية شرقيةهل العقار مرهون؟
لاالمعلن
الوسيططريقة الدفع
كاشالقسم الرئيسي
عقارات للبيعالقسم الفرعي
شقق للبيعالمزايا الرئيسية
غرفة غسيل, شرفة / بلكونة
المزايا الإضافية
مصعد, موقف سيارات, درج
مواقع قريبة
سوبر ماركت, صالة رياضية / جيم, صيدلية, مدرسة, مسجد, موقف سيارات, مطعم
الوصف
للبيع شقة مميزة في الطابق الرابع داخل عمارة حديثة، مزوّدة بـ مصعد لراحة السكان.
تتجه الشقة نحو الشمال الشرقي، ما يمنحها إضاءة ممتازة وتهوية مثالية طوال اليوم.
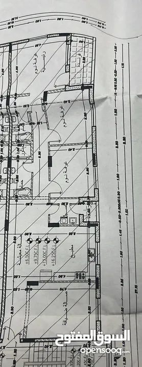
المساحة: 160 متر مربع
الحالة: عظم – جاهزة للتشطيب بالطريقة التي تفضّلها
مواصفات مميزة:
• موقع هادئ قريب من الخدمات
• بناء قوي وتشطيبات خارجية ممتازة
• توزيع داخلي عملي يسهل تصميمه حسب الذوق
هذه فرصة مناسبة للباحثين عن السكن المستقبلي أو الاستثمار العقاري الذكي
إعلان رقم: 273844227





